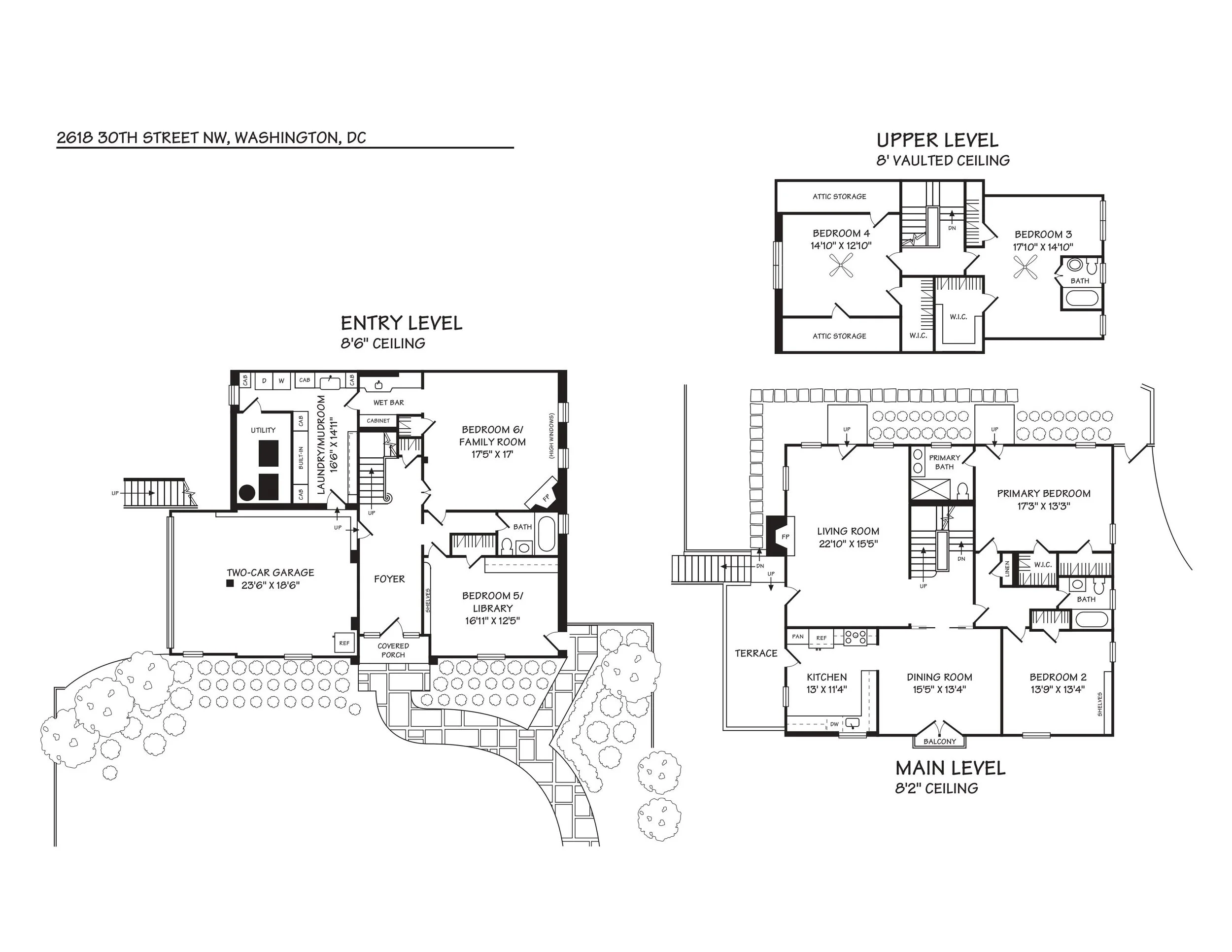
2618 30th Street NW | Massachusetts Avenue Heights | $3,250,000

4,983 SqFt | .25 Acres | 6 Bedrooms | 4 Full Bathrooms

Property Video